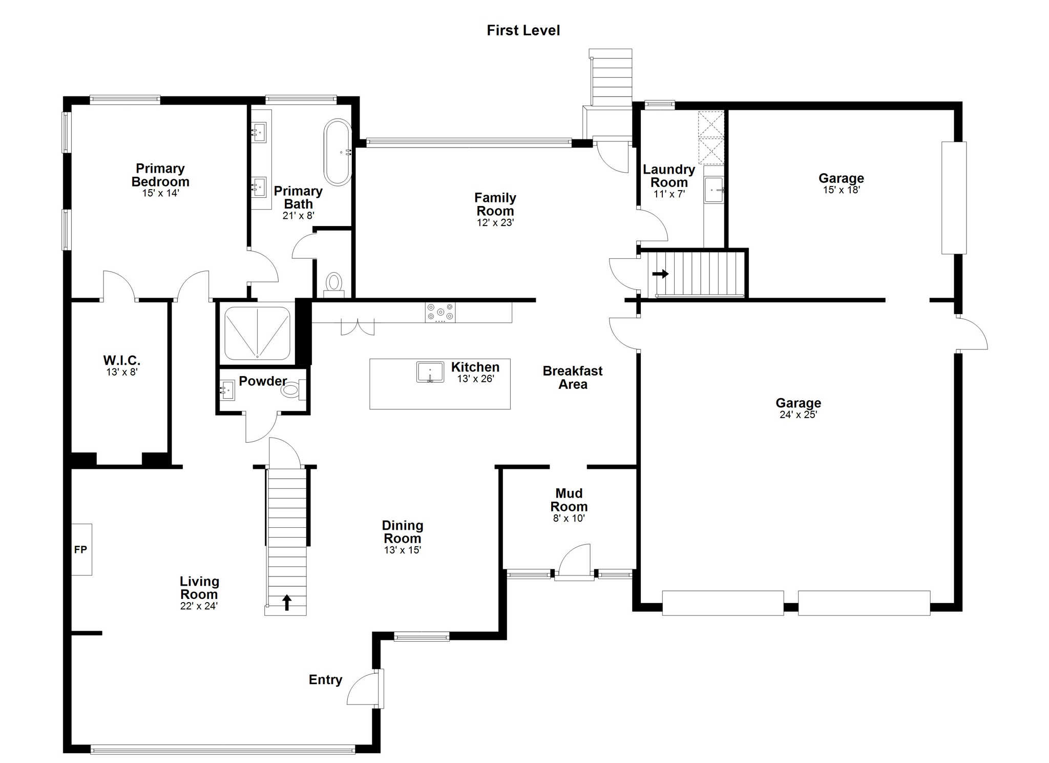
First Level
Second Level
Lower Level
First Level
Second Level
Lower Level