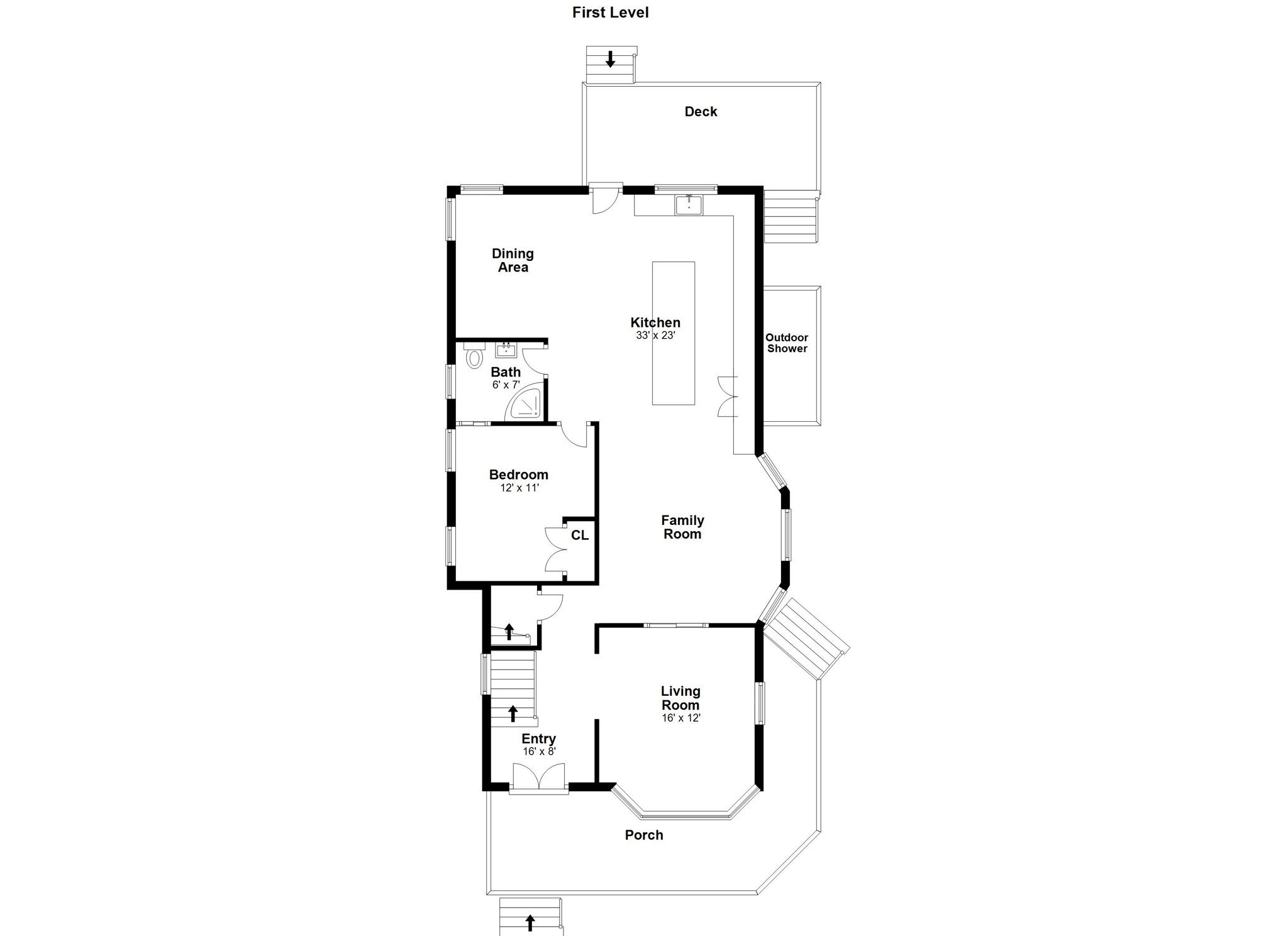
First Level
Second Level
Third Level
Lower Level
First Level
Second Level
Third Level
Lower Level