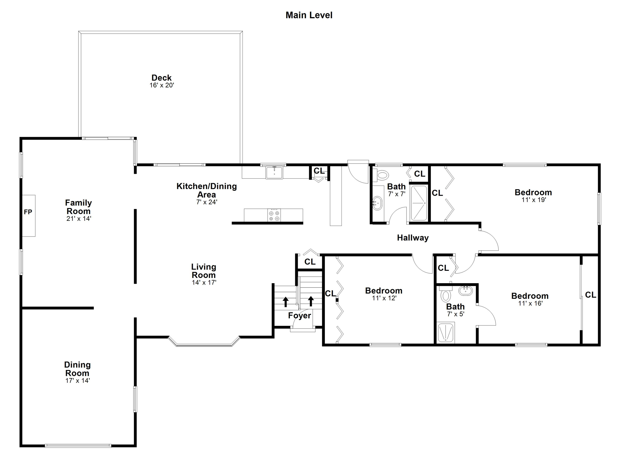
Main Level
Lower Level
Main Level
Lower Level