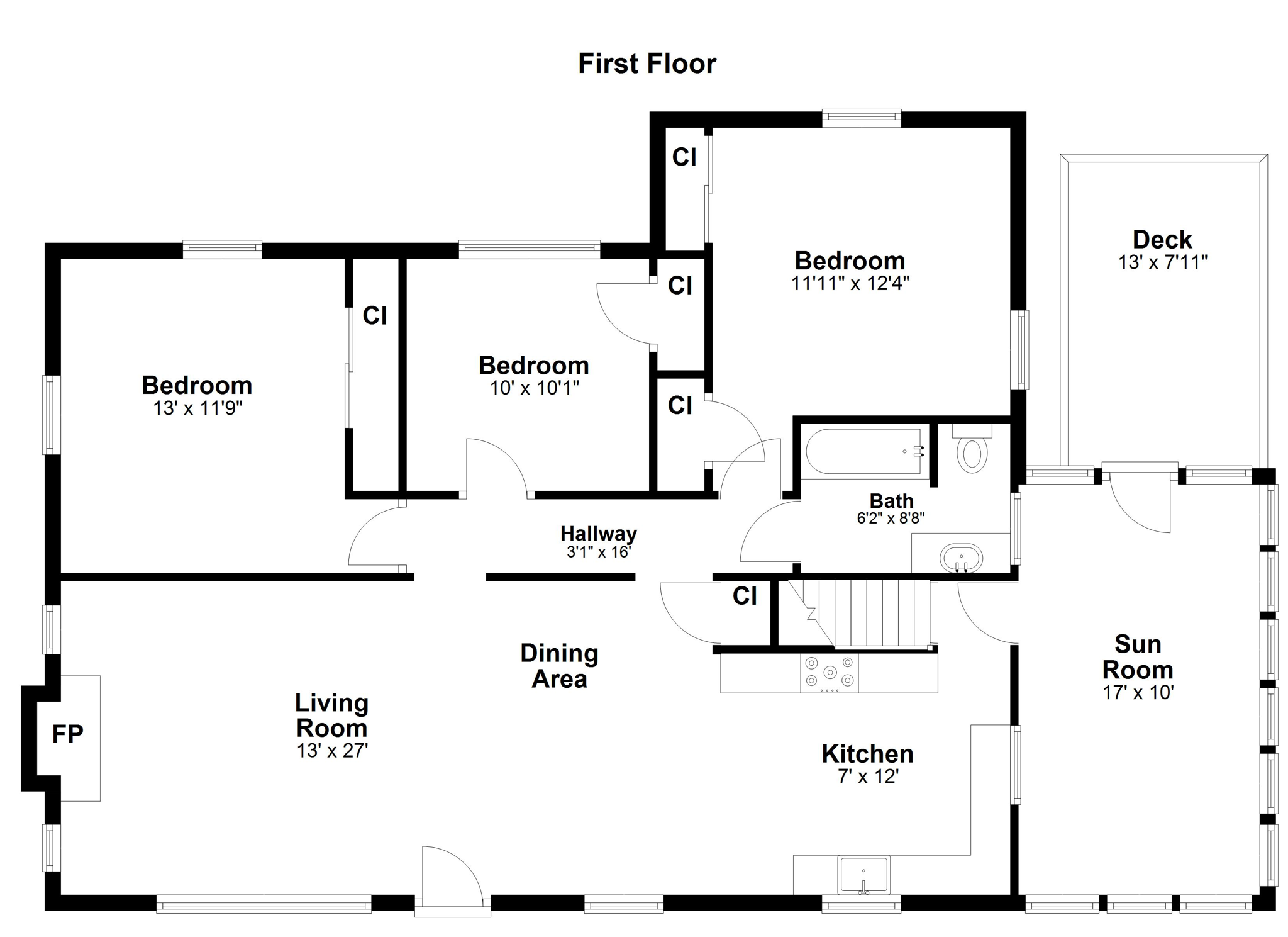
First Floor
Basement
First Floor
Basement