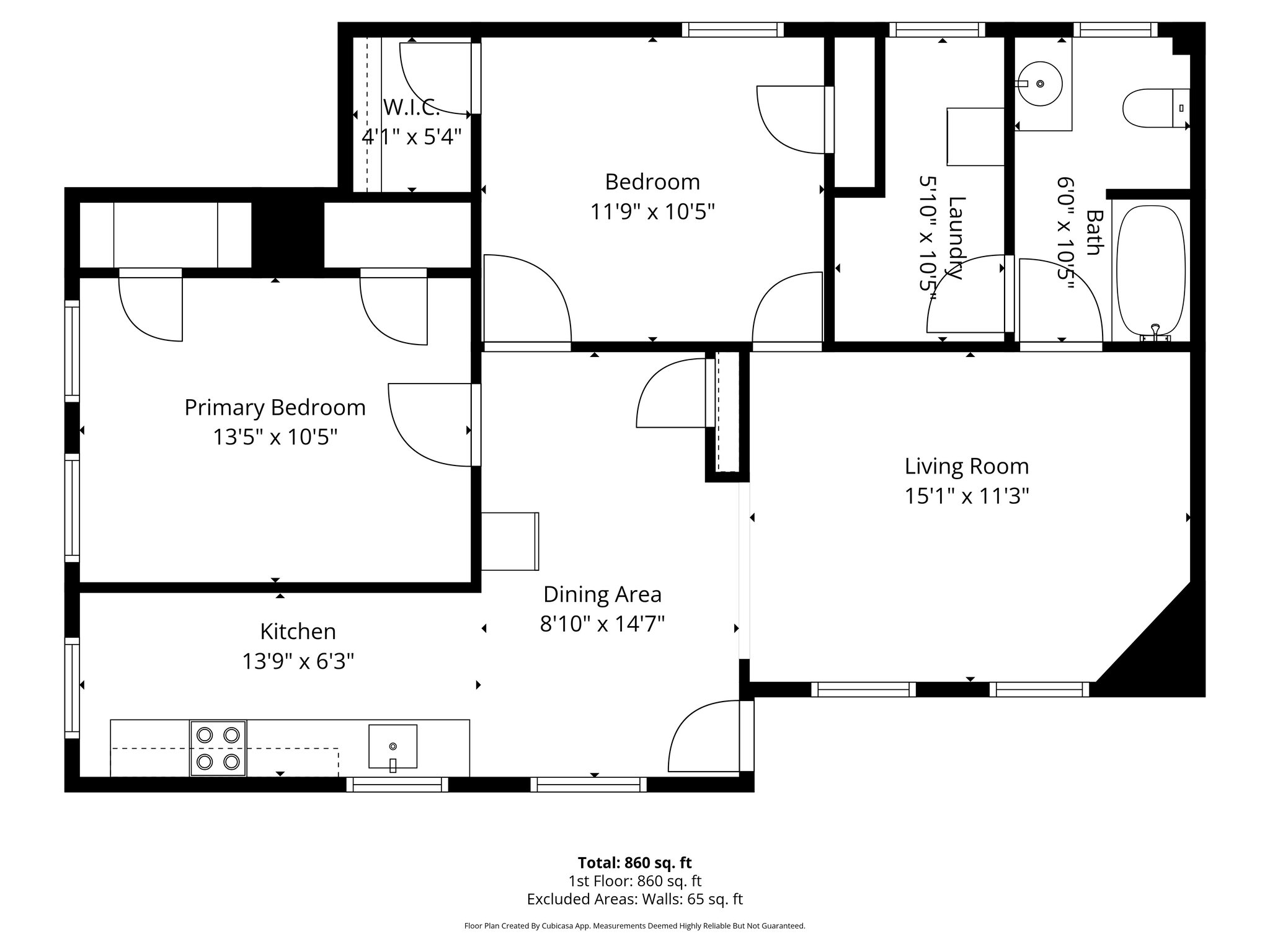
Main Level
Main Level